SS-V:2060 销端交叉的面内振动

测试编号:VM07 求出端部有销钉连接的交叉平面内振动的前八阶模态频率。

定义



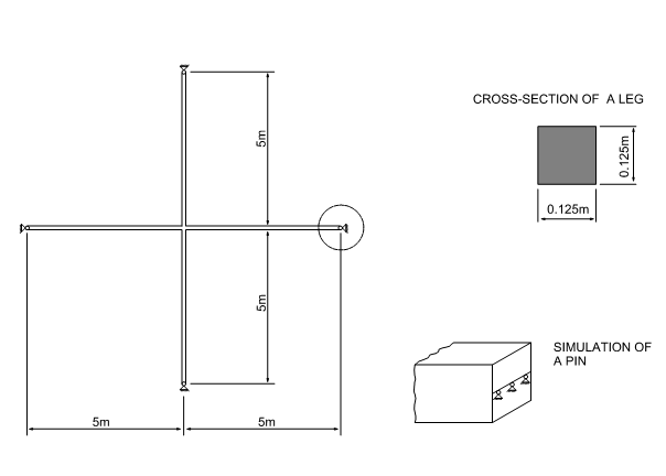
图 1.

销是通过施加于直线的零位移来模拟的。交叉的前表面是从平面外位移固定的。

单位为 SI。

材料属性为:
属性
弹性模量
2e+11 N/m2
泊松比
0.3
质量密度
8000 kg/m3

结果

下表总结了模式。
  参考解 SimSolid % 差异
模式 1 [Hz] 11.336 11.312 -0.21%
模式 2 [Hz] 17.709 17.810 0.57%
模式 3 [Hz] 17.709 17.840 0.74%
模式 4 [Hz] 17.709 17.840 0.74%
模式 5 [Hz] 45.345 45.130 -0.47%
模式 6 [Hz] 57.390 57.360 -0.05%
模式 7 [Hz] 57.390 57.370 -0.03%
模式 8 [Hz] 57.390 57.550 -0.28%
1 NAFEMS, SBNFA(1987 年 11 月), 测试 1.